大傾角皮帶輸送機

DJ型大傾角皮帶輸送機產品描述:
DJ型大傾角皮帶輸送機又稱大傾角擋邊帶式輸送機為一般用途的散狀物料連續輸送設備,采用的是具有波狀和橫隔板的輸送帶。因此特別適用于大傾角輸送。DJ型大傾角皮帶輸送機可用于煤炭、化工、建材、冶金、電力、輕工、糧食、港口、船舶、熱電等行業,在工作環境溫度為-15℃--+40℃的范圍內輸送堆積比重為0.5-2.5t/m3的各種散狀物料。
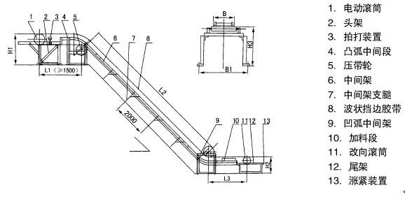
DJ型大傾角皮帶輸送機外形圖:
DJ型大傾角皮帶輸送機技術參數:

大傾角皮帶輸送機優點:
1.許用的輸送傾角大,可達90°,是大傾角輸送和垂直提升的理想設備。因而可以節約占地面積,節省設備投資和土建費用,取得良好的綜合經濟效益。
2.結構簡單。各部件均可與通用皮帶輸送機通用,給使用和維修該來方便。
3.運行可靠。沒有埋刮板輸送機經常出現的卡鏈、漂鏈、斷鏈現象和斗式提升機經常發生的打滑、掉斗現象。它的可靠度幾乎與通用皮帶輸送機相等。
4.運行平穩、噪音小。
5.由于不存在裝料時的挖掘阻力和運行時物料的內摩擦、外摩擦阻力,因而能耗小。
6.大傾角皮帶輸送機還可以在機頭和機尾設置任意長度的水平段,便于和其他設備銜接。
DJ型大傾角皮帶輸送機特點
DJ型大傾角皮帶輸送機與普通式輸送機、斗式提升機、刮板輸送機比較,其綜合技術性能都非常優越.輸送量大,可達6000m3/h,垂直提升高度可達200m.在垂直輸送物料時,物料粒度可達200mm.從水平到傾斜(或垂直)能平穩過渡.能耗低、結構簡單、維護方便.皮帶強度高,使用壽命長.DJ型大傾角皮帶輸送機兼有通用帶式輸送機結構簡單、運行可靠、維修方便等優點,近年在大提升高度、大輸送量等方面全面發展,使其應用范圍更廣.





