TD斗式提升機

TD斗式提升機又稱:膠帶斗式提升機、皮帶斗式提升機,主要適用于垂直保送粉狀、粒狀及小塊狀散態物料比方:糧食、煤、水泥、碎礦石等,提升高度可達40米,特點為:構造簡、運轉穩、挖取式裝料物料溫度不超越60℃,與傳統D型斗式提升機比擬,提升效率高,料斗方式多深得用戶喜歡。TD型按JB3926-85《垂直斗式提升機》規范設計制造,當前國內常用的斗式提升機均為垂直式,較新型。TD型斗式提升機備有四種料斗Q型(淺斗)、H型(弧底斗)、ZD型(中深斗)SD型(深斗)。
TD斗式提升機根本構造:
TD斗式提升機由運轉局部(料斗與牽引膠帶),帶有傳動滾筒的上部區段,帶有拉緊滾筒的下部區段,中心機殼,驅動安裝,逆止制動安裝等構成,合用于向上保送松懈密度ρ<1.5t/m3粉狀、粒狀和小塊狀的無磨琢性和半磨琢性散狀物料,如煤、砂、焦末、水泥、碎礦石等。
TD斗式提升機構造方式:傳動安裝TD膠帶斗式提升機的傳動安裝有兩種方式辨別配有YZ型減速器ZQ(或YY)型減速器。YZ型軸減速器直接裝在主軸軸頭上,省去了傳動平臺、聯軸器等,使構造緊湊、分量輕,并且其內部帶有異型輥逆止器,逆止牢靠。該減速器噪音低,運轉平穩,并隨主軸浮動,可消弭裝置應力。
TD斗式提升機主要特點:
1.驅動功率小,采用流入式喂料、誘導式卸料、大容量的料斗密集型安插.在物料提升時簡直無回料和挖料景象,因而無效功率少。
2.提升局限廣,這類提升機對物料的品種、特征要求少,不單能提升普通粉狀、小顆粒狀物料,并且可提升磨琢性較大的物料.密封性好,情況污染少。
3.運轉牢靠性好,進步前輩的設計道理和加工辦法,包管了整機運轉的牢靠性,無毛病工夫超越2萬小時。提升高度高.提升機運轉平穩,因而可到達較高的提升高度。
4.運用壽命長,提升機的喂料接納流入式,無需用斗挖料,資料之間很少發作擠壓和碰撞景象。本機在設計時包管物料在喂料、卸料時少有撒落,削減了機械磨損。
TD斗式提升機技術參數表
|
提升機型號
|
TD160斗式提升機
|
TD250斗式提升機
|
TD315斗式提升機
|
TD400斗式提升機
|
||||||||||||
|
料斗形式
|
Q
|
H
|
Zd
|
Sd
|
Q
|
H
|
Zd
|
Sd
|
Q
|
H
|
Zd
|
Sd
|
Q
|
H
|
Zd
|
Sd
|
|
輸送量(m3/h)
|
5.4
|
9.6
|
9.6
|
16
|
12
|
22
|
23
|
35
|
17
|
30
|
25
|
40
|
24
|
46
|
41
|
66
|
|
斗寬(mm)
|
160
|
250
|
315
|
400
|
||||||||||||
|
斗容(L)
|
0.5
|
0.9
|
4.2
|
1.9
|
1.3
|
2.2
|
3.0
|
4.6
|
2
|
3.6
|
3.8
|
5.8
|
3.1
|
5.6
|
5.9
|
9.4
|
|
斗距(mm)
|
280
|
350
|
360
|
450
|
400
|
500
|
480
|
560
|
||||||||
|
帶寬(mm)
|
200
|
300
|
400
|
500
|
||||||||||||
|
斗速(m/s)
|
1.4
|
1.6
|
1.6
|
1.8
|
||||||||||||
|
物料量大塊(mm)
|
25
|
35
|
45
|
55
|
||||||||||||
|
型號
|
TD500斗式提升機
|
TD630斗式提升機
|
D160
|
D250
|
D350
|
D450
|
||||||||||
|
料斗形式
|
Q
|
H
|
Zd
|
Sd
|
H
|
Zd
|
Sd
|
Q
|
S
|
Q
|
S
|
Q
|
S
|
Q
|
S
|
|
|
輸送量(m3/h)
|
38
|
70
|
58
|
92
|
85
|
89
|
142
|
4.7
|
8
|
18
|
22
|
25
|
42
|
50
|
72
|
|
|
斗寬(mm)
|
500
|
630
|
160
|
250
|
350
|
450
|
||||||||||
|
斗容(L)
|
4.8
|
9
|
9.3
|
15
|
14
|
14.6
|
23.5
|
0.65
|
1.1
|
2.6
|
3.2
|
7
|
7.8
|
14.5
|
15
|
|
|
斗距(mm)
|
500
|
625
|
710
|
300
|
400
|
500
|
640
|
|||||||||
|
帶寬(mm)
|
600
|
700
|
200
|
300
|
400
|
500
|
||||||||||
|
斗速(m/s)
|
1.8
|
2
|
1
|
1.25
|
1.25
|
1.25
|
||||||||||
|
物料量大塊(mm)
|
60
|
70
|
25
|
35
|
45
|
55
|
||||||||||
闡明:1.表中斗容為核算斗容,保送量按填充系數0.6核算得出。
2.斗式提升機料斗用處為:
淺料斗:保送濕潤、易結塊、難拋出的物料。如濕沙、濕煤等。
深料斗:保送枯燥的、松懈的、易拋出的物料。如水泥、煤塊、碎石、石英砂等。

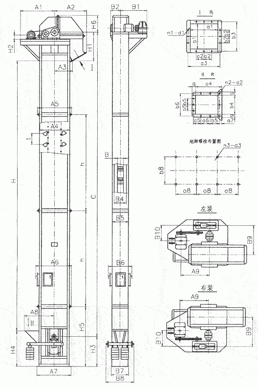
TD斗式提升機外形尺寸參照表:
|
斗提機型號
|
TD100
|
TD160
|
TD250
|
TD315
|
TD400
|
TD500
|
TD630
|
|
|
輪廓高度L
|
C+1100
|
C+1363
|
C+1535
|
C+1640
|
C+1790
|
C+1865
|
C+2045
|
|
|
整機結構
|
H
H4 S |
C-820
600 200 |
C-930
700 250 |
C-1250
800 250 |
C-1245
850 250 |
C-1500
950 250 |
C-1700
900 250 |
C-1730
1060 315 |
|
料斗
|
t
b |
200
100 |
350/280
160 |
450/360
250 |
500/400
315 |
560/480
400 |
625/500
500 |
710
630 |
|
地腳孔
|
a3
b3 n3 d3 |
200
310 8 Φ18 |
250
400 8 Φ18 |
300
538 8 Φ18 |
300
648 8 Φ18 |
400
768 8 Φ22 |
400
900 8 Φ22 |
380
1020 10 Φ30 |
|
上、下部機殼及外形輪廓
|
H3
H6 A2 A6 A7 B2 B4 B5 |
970
1210 692 776 1050 220 370 330 |
1185
1500 985 996 1235 295 461 475 |
1320
1800 1175 1266 1600 394 596 610 |
1488
1800 1200 1266 1700 440 706 710 |
1500
2000 1350 1558 1980 535 828 835 |
1655
2300 1410 1610 2200 605 980 1000 |
1750
2500 1590 1890 2500 660 1110 1110 |
|
中部機殼
|
A4
A5 B3 |
776
805 390 |
982
1021 525 |
1152
1302 682 |
1254
1400 794 |
1548
1580 920 |
1570
1630 1040 |
1850
1910 1160 |
|
卸料口
|
H1
A3 a1 a2 a3 b1 b2 b3 n1 d1 |
520
438 334 120 390 224 95 280 12 Φ12 |
630
548 365 150 431 315 150 381 12 Φ12 |
750
713 600 200 676 450 200 526 12 Φ12 |
795
763 560 230 638 560 230 638 12 Φ12 |
850
824 670 295 758 670 295 758 12 Φ14 |
1000
885 700 355 880 780 300 800 12 Φ18 |
1200
1045 700 300 800 900 280 1000 14 Φ18 |
|
進料口
|
H5
a4 a5 a6 a7 b4 b5 b6 n2 d2 |
900
280 80 100 19 220 100 250 9 Φ10 |
1000
260 80 100 19 220 100 250 9 Φ12 |
1320
260 43 110 26 260 110 306 9 Φ12 |
1320
355 58 150 45 320 155 370 9 Φ12 |
1600
450 100 175 40 450 215 510 9 Φ14 |
1600
500 65 210 40 500 220 550 9 Φ14 |
1886
560 85 160 30 630 160 700 12 Φ14 |
TD斗式提升機驅動配備表:
ZQ型斗提機驅動裝置配套表:
|
斗提機
型號 |
傳動裝置
代號 |
電動機
|
ZQ減速器型號
|
重量
kg |
||
|
型號
|
功率
kw |
右裝傳動裝置
|
左裝傳動裝置
|
|||
|
TD100
|
C1
|
Y100L-6
|
1.5
|
ZQ25-16-ⅢZ
|
ZQ25-16-ⅣZ
|
230
|
|
C2
|
Y112M-6
|
2.2
|
240
|
|||
|
TD160
|
C1
|
Y132S-6
|
3
|
ZQ35-12.5-ⅢZ
|
ZQ35-12.5-ⅣZ
|
472
|
|
C2
|
Y132M1-6
|
4
|
490
|
|||
|
C3
|
Y132M2-6
|
5.5
|
ZQ40-12.5-ⅢZ
|
ZQ40-12.5-ⅣZ
|
563
|
|
|
C4
|
Y160M-6
|
7.5
|
621
|
|||
|
TD250
|
C1
|
Y132M2-6
|
5.5
|
ZQ40-16-ⅢZ
|
ZQ40-16-ⅣZ
|
576
|
|
C2
|
Y160M-6
|
7.5
|
616
|
|||
|
C3
|
Y160L-6
|
11
|
ZQ50-16-ⅢZ
|
ZQ40-16-ⅣZ
|
838
|
|
|
C4
|
Y180L-6
|
15
|
903
|
|||
|
TD315
|
C1
|
Y160M-6
|
7.5
|
ZQ40-16-ⅢZ
|
ZQ40-16-ⅣZ
|
645
|
|
C2
|
Y160M-4
|
11
|
ZQ50-20-ⅥZ
|
ZQ50-20-ⅤZ
|
855
|
|
|
C3
|
Y160L-4
|
15
|
883
|
|||
|
TD400
|
C1
|
Y180L-6
|
15
|
ZQ50-16-ⅢZ
|
ZQ50-16-ⅣZ
|
936
|
|
C2
|
Y200L1-6
|
18.5
|
ZQ65-16-ⅥZ
|
ZQ65-16-ⅤZ
|
1687
|
|
|
C3
|
Y200L2-6
|
22
|
1702
|
|||
|
C4
|
Y225M-6
|
30
|
1787
|
|||
|
TD500
|
C1
|
Y180L-6
|
15
|
ZQ50-16-ⅢZ
|
ZQ50-16-ⅣZ
|
1724
|
|
C2
|
Y200L1-6
|
18.5
|
ZQ65-16-ⅥZ
|
ZQ65-16-ⅤZ
|
1760
|
|
|
C3
|
Y200L2-6
|
22
|
1775
|
|||
|
C4
|
Y225M-6
|
30
|
1810
|
|||
|
TD630
|
C1
|
Y200L2-6
|
22
|
ZQ65-20-ⅥZ
|
ZQ65-20-ⅤZ
|
1876
|
|
C2
|
Y225M-6
|
30
|
1952
|
|||






